|
文/侯斌 【摘要】本文介绍了钢桶柔性生产线技术原理,重点阐达了关键设备——卷边机和桶身联合成型机的柔性化设计方案,描述了该技术在金属包装行业的应用效采并对其未未发展做了展望。 【关键词】钢桶生产线;柔性化设汁原理;卷边机;桶身联合成型机 引言 传统的钢桶生产线的单一性、专用型特性,已不适应现代化工业主产模式的需要。为了适应钢桶行业多品种、多规格生产的需求,通过建立钢桶主产线柔性化设计分析计算模型,实现钢桶生产结的柔性化设计,达到在一条生产线上可生产多品种、多规格型号的钢桶的目的。企业可根据需求调整生产的规格和产量,提高企业应变能力,实现可持续发展和灵活变化。 1 钢桶柔性生产线技术原理 1.1 技术原理 为适应钢桶不同规恪的材质、料厚、直径、容器高度、开口形式等结构参数的变化,依据建立的钢桶生产结柔性设计分析计算模型,在生产线上包括几个单机(包括桶身联合成型机、折边机、胀筋整形机、擦桶机、卷边封口机、卸桶机等)和输送及上下料机构(机械手)中设置必要的调整环节,运用PLC及单片机等控制技术对动力部件的工作位置、作用尺寸、工作压力、运动速度、循环程序等功能参数进行快变、快换或快调,实现钢桶生产线的柔性化生产。 1.2 设计思路 实现主产线的快速(4小时内)可调整即柔性化,在生产线具备柔性化功能的同时,还要操作简单、实用和方便。具体是在柔性化生产线上的生产设备和工件输送机构(机械手) 采用轴向和径向可调或可换的总体和部件设计,凡涉及被加工工件结构和作用尺寸的零部件设置有螺纹副调整机构、T型槽位移调整机构、长槽位移调整机构、铰链接机构、销定位或止口定位互换装置、半瓦连接互换装置、分体式结构互换装置、交换齿轮互换装置等零部件调整和更换环节,在机械、液压、气动等动力系统的作用下,通过控制系统的集中控制,对各顶参数进行迅速调变。
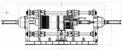
2 卷边机及桶身联合成型机的柔性化设计 2.1 卷边机的柔性化设计 根据产品的直径、长度和料厚,迅速对机床运动速度、压力和位置进行调整,以适应多品种钢桶的轮番主产。床身有四柱式导轨、对称式座板和焊接式底座连接构成框架式支承导向系统,具有好的刚性。为了具有“柔性”性能, 该机床设置一下调整环节:按照GB325国家标准规定80升~230升以及320升的要求,封口盘的轴向位置可调整范围为615mm~1050mm;卷边轮的径向位置调整范围为415mm~700mm;卷边机进给速度在2.6mm/min~1060mm/min范围内无极调速,工件的旋转速度设计为低速区段在270r/min,高速区段在340r/min,根据产品进行转换;封口盘轴向压力设计为在280kgf~3800kgf之间无极调整,卷边进给力在630kgf~7300kgf之间无极调整。 为了实现以上调整功能,主轴采用机械双速传动,进给、封口采用液压传动。自动控制系统根据新品种的材料厚度和材质对机床液压系统工作压力、运动速度、材质塑性变形以及保压时间等参数作出调整。借助于封口盘、卷边轮等的互换性,实现柔性化生产功能。在实现机床具备柔性化功能的同时,还考虑到操作简单、方便。
2.2 桶身联合成型机的柔性化设计 该机床是在一台设备上自动完成桶身折边、波纹、环筋三道工序,为实现柔性功能,机床设计有统一的更换不同规格的成型工具定心安装尺寸。机床挤压行程、工件夹持定心直径、挤压力以及挤压速度等参数可进行无级调整。机身采用四柱式导柱的框架总体布局,以提高机床支撑导向系统的刚度。成型工具采用滚动楔铁胀压机构和挤压折边模具设计,实现桶身多条波纹的逐一顺序次无干涉连续胀压。多种规格桶身的成型工具采用不需要更换的统一工具模芯。本机床全部动力采用液压传动,叠加阀和直流湿式电磁换向阀,构成多动力部件抗平扰集中控制系统,采用定量泵的变量化恒功率控制系统设计和自动计时全量卸荷以降低系统的发热。 结语
钢桶的柔性生产技术是当前钢桶包装行业适应市场动态需求及产品不断迅速更新的主要手段。实践证明,应用柔性自动化生产系统可提高生产率1倍~4倍,新产品试制周期和费用减少1/3~1/2。从而可缩短制造周期和交货期,加快产品更新换代,大幅度降低成本,提高企业对市场变化的应变能力和竞争能力,给企业带来明显的经济效益。钢桶的柔性生产线从2005年起已在广东、福建、江苏、陕西、四川等地成功应用。投入生产以来,运行稳定、可靠,柔性化生产带来的经济效益显著。2013年又在江苏扬州建设成一条柔性的中、低水平放射性核废物贮运容器自动化生产线,它采用了柔性生产技术,满足了我国多规格核废物容器的自动化生产的要求,实现了核废物容器制造产业化,使核废物容器制造标准达到先进的行业水平;质量和产品性能处于国内领先;推动核废物容器在核电站的应用,并通过核废物容器的应用而减少再生废物,从而保护环境,有利于核能的发展和应用,经济效益和社会效益显著。 |


当前位置: 
